175 Cedarwood Lane
Roswell, GA 30075
Aster - Homesite 16
Welcome to 175 Cedarwood Lane, a thoughtfully crafted 4,308-square-foot home by Brightwater, nestled within the sought-after Aster community in Roswell. Set on a private, wooded one-acre homesite in a premier cul-de-sac setting, this home combines refined design, energy efficiency, and seamless indoor–outdoor living.
The main level features an inviting vaulted family room with expansive glass sliders opening to a 12’x20’ vaulted, covered rear porch—ideal for year-round gatherings. The gourmet kitchen is equipped with a Thermador 48” range, generous island, and a walk-in scullery designed for effortless entertaining. A dedicated work-from-home space sits just off the foyer for convenience and focus.
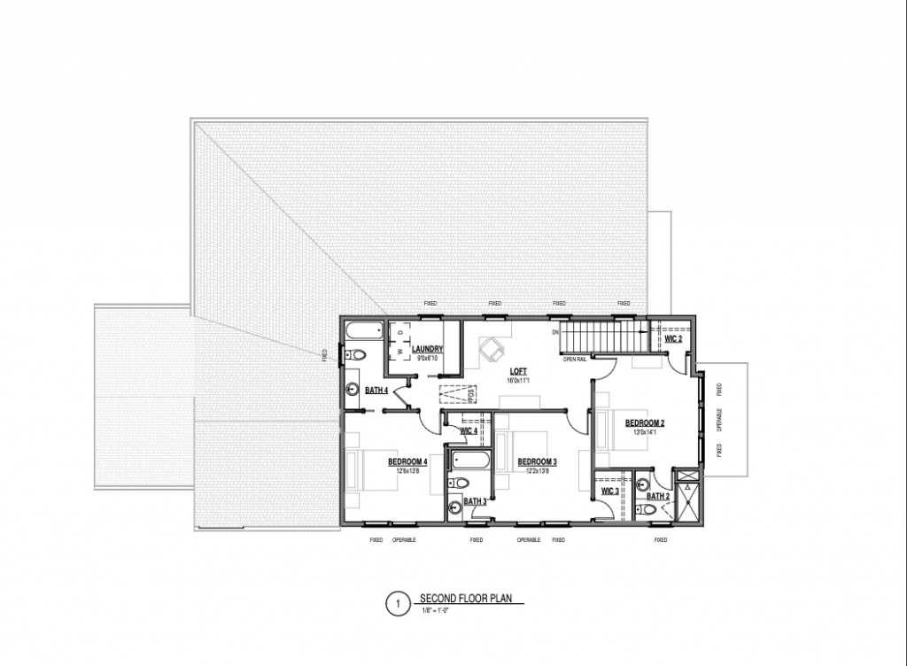
The primary suite on the main level provides a peaceful retreat with wooded views, a vaulted ceiling, a spa-inspired bath with freestanding tub, and a spacious walk-in closet. Upstairs, three secondary bedrooms each include ensuite baths and walk-in closets, surrounding a bright loft and full-size laundry room.
The finished daylight terrace level adds flexible living space and the potential for future expansion. A three-car tandem garage offers room for vehicles, storage, or workshop hobbies.
Certified as a Zero Energy Ready Home, this residence reflects Brightwater’s commitment to healthier, more sustainable living—beautifully blending nature, comfort, and thoughtful design.
Total Finished Square Footage: 4,308 sq ft | Total Unfinished Square Footage: 1,289 sq ft
Important Home Features
Limited Time: Free Solar Panels on Seller accepted contracts through 5/24/26.
- 1-Acre Wooded Cul de Sac Homesite
- Primary Suite on the Main Level
- Vaulted Family Room
- Dedicated Work From Home Space
- Zero Energy Ready Home
Ready for more information?
We would love to show you more. Reach out to us by phone or email today and a Brightwater specialist will be happy answer any questions you may have.
About Aster
Aster
Curated Modern Living in a Natural Retreat
Life at Aster is a world apart from ordinary. As you drive in, feel yourself enveloped in a serene setting of mature trees, winding trails disappearing into the distance and a thoughtful streetscape complementing the organic lines of the land. Aster is refined yet idyllic in the midst of all that Roswell has to offer –balancing town and country, convenience and comfort, simplicity and forward-thinking.
Here, discover just twenty-four modern Scandinavian homes intentionally crafted for naturally modern living. And right outside your door, join neighbors and friends around the firepit with a view to the stars, watch the kids explore the play area and activity lawn with firepit, stretch your legs on the nature trails or catch the sun sparkling over the pond. While the world waits just moments away, revel in a verdant retreat of your very own at Aster.
New homes at Aster are intentionally designed and thoughtfully detailed with you in mind. Striking modern Scandinavian architecture is brought to life in a masterful mix of materials and color palettes that embrace the beauty of trees and green spaces all around as large windows welcome the natural light and views. Inside, you’ll find designer-curated interiors where every detail has been attended to create a home that looks and lives beautifully. High style meets high performance here. All new homes at Aster are Zero Energy Ready Homes.
Brightwater is committed to building more sustainable, healthier new homes responsibly and with true respect for the environment. That’s why Aster is a Zero Energy Ready community combining smart, conservation-minded design and development, thoughtful wildscaping, locally and regionally sourced materials and high-performance systems to create a healthier, more comfortable home that has less impact on the environment and also costs less for you to own.
Community
Aster
125 Cedarwood Lane
Roswell, GA 30075
Also Available in Aster
$1,499,000
Homesite 24
4 Beds · 4.5 Baths
110 Cedarwood Lane
Roswell, GA 30075
$1,525,000
Homesite 02
5 Beds · 5.5 Baths
215 Winterberry Way
Roswell, Georgia 30075
$1,580,000
Homesite 22
4 Beds · 4.5 Baths
130 Cedarwood Lane
Roswell, GA 30075
$1,599,000
Homesite 09
4 Beds · 4.5 Baths
240 Winterberry Way
Roswell, GA 30075
$1,650,000
Homesite 08
5 Beds · 5.5 Baths
250 Winterberry Way
Roswell, GA 30075
$1,699,900
Homesite 05
4 Beds · 4.5 Baths
280 Winterberry Way
Roswell, GA 30075
$1,715,000
Homesite 16
4 Beds · 4.5 Baths
175 Cedarwood Lane
Roswell, GA 30075
Under Contract
Homesite 17
4 Beds · 4.5 Baths
180 Cedarwood Lane
Roswell, GA 30075
Under Contract
Homesite 03
4 Beds · 4.5 Baths
225 Winterberry Way
Roswell, GA 30075
Under Contract
Homesite 10
4 Beds · 4.5 Baths
230 Winterberry Way
Roswell, GA 30075
Contact Us
Aster
125 Cedarwood Lane
Roswell, GA 30075
Expand Directions
Open Hours
Monday - Tuesday: 10am - 4pm
Wednesday: Closed
Thursday - Saturday: 10am - 4pm
Sunday: 1pm - 5pm
Sales Agent
Wynn Tierney
Anna Jaffe


































