8220 Jack Island Drive
Johns Island, SC 29455
Kiawah River - Homesite EJ16
Set along the natural beauty of Kiawah River, 8220 Jack Island Drive is a thoughtfully designed home by Brightwater that blends elevated Lowcountry architecture with modern comfort and efficiency. Metal roofing, deep overhangs, and timeless coastal proportions create a classic exterior presence that feels both refined and rooted in its surroundings.
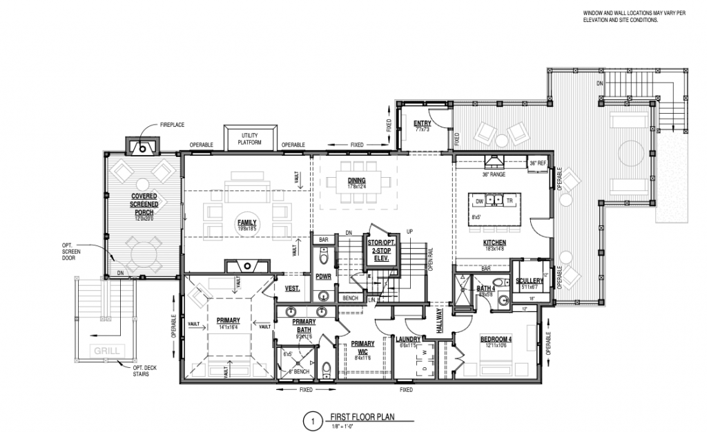
Inside, this 4-bedroom, 4.5-bath residence offers 2,791 square feet of well-planned living space designed to support everyday living and effortless entertaining. The main living areas are filled with natural light, enhanced by vaulted ceilings in the family room that create an open, airy atmosphere. The chef’s kitchen anchors the home with a generous center island, Thermador appliances, and a walk-in scullery that allows the main kitchen to remain pristine while hosting.
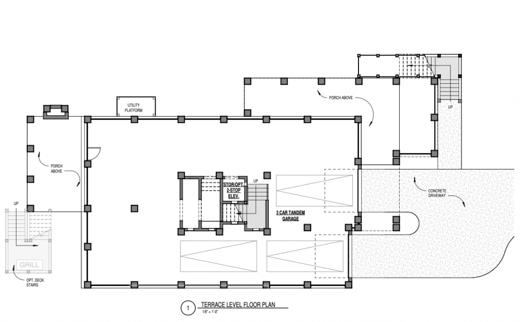
Indoor and outdoor living connect seamlessly, with more than 867 square feet of outdoor space designed for year-round enjoyment. A gracious 627-square-foot wrap-around front porch sets the tone, while a 12-by-20 screened porch off the family room offers the perfect setting for dining al fresco or relaxing. Optional deck stairs provide direct access to the backyard, extending the home’s livability even further.
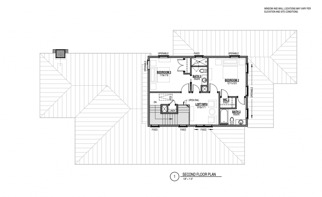
The primary suite is privately located on the main level and features a vaulted ceiling, spa-inspired bath, generous walk-in closet, and convenient access to the laundry, supporting both comfort and long-term livability. A second main-level bedroom with a full bath offers flexibility for guests, multigenerational living, or a home office. Upstairs, two additional bedrooms each enjoy access to a full bath, along with a versatile loft space ideal for working from home, media use, or quiet retreat.
A spacious three-car tandem garage provides ample storage and functionality, with an option for a two-stop elevator to enhance convenience and future accessibility. Built to Brightwater’s 100% Zero Energy Ready standard, this home delivers exceptional energy efficiency, improved indoor air quality, and lasting comfort—offering a thoughtful, forward-looking approach to Lowcountry living at Kiawah River.
8220 Jack Island DriveImportant Home Features
- Vaulted Family Room
- Vaulted Main Level Primary Room
- Covered Screened Porch with Fireplace
- Optional Elevator
- Zero Energy Ready Home
Ready for more information?
We would love to show you more. Reach out to us by phone or email today and a Brightwater specialist will be happy answer any questions you may have.
About Kiawah River
Kiawah River
Kiawah River invites you to explore this special sea island setting nestled within 2,000 acres of pastoral waterfront along the Kiawah River. Every facet of Kiawah River is meticulously designed to align with the great outdoors - where your spirit finds serenity, your body renews its vigor, and your mind discovers tranquility.
Nestled within the Sea Islands of Charleston, this elevated waterfront community invites you to a life intricately woven with nature's embrace. See the homes inspired from historical styles indigenous to the Southern region and designed for outdoor living, the abundant outdoor village gathering places and resort style amenities, and the farm and Goatery that bring the agrihood true farm to table living.
Brightwater is committed to building healthier, more efficient new homes responsibly and with true respect for the environment. With our passion that the entire Brightwater team shares in its mission to be good stewards of the land and its resources - planning thoughtfully, designing sustainably and building responsibly - we knew Kiawah River was the perfect match for Brightwater.
This could be your new home at Kiawah River, a Sea Island Village.
Kiawah River homes are Zero Energy Ready, thoughtfully designed with the infrastructure in place to easily add solar panels in the future.
Community
Kiawah River
3883 Betsy Kerrison Parkway
Johns Island, SC 29455
Also Available in Kiawah River
$1,710,000
Homesite EJ16
4 Beds · 4.5 Baths
8220 Jack Island Drive
Johns Island, SC 29455
$1,920,500
Homesite EC22
4 Beds · 4.5 Baths
8015 Jack Island Drive
Johns Island, South Carolina 29455
Under Contract
Homesite EH30
4 Beds · 4.5 Baths
6021 Honey Hole Haven
Johns Island, SC 29455
Under Contract
Homesite EH82
4 Beds · 4.5 Baths
4016 Chantey Crest
Johns Island, SC 29455
Under Contract
Homesite EH70
4 Beds · 4.5 Baths
4023 Chantey Crest
Johns Island, South Carolina 29455
Under Contract
Homesite EH83
4 Beds · 4.5 Baths
4020 Chantey Crest
Johns Island, SC 29455
Under Contract
Homesite EH04
5 Beds · 4.5 Baths
6033 Honey Hole Haven
Johns Island, South Carolina 29455
Contact Us
Kiawah River
3883 Betsy Kerrison Parkway
Johns Island, SC 29455
Expand Directions
Open Hours
Monday - Friday: 9AM - 5PM
Saturday & Sunday: 10AM - 5PM
Sales Agent
Kiawah River Real Estate
Chris Drury, Gabriella Andrews, Dean Haeusser, Kayla Nelson,





























