915 Ebenezer Lane
Milton, GA 30075
The Ridge at Sweet Apple - Homesite 05
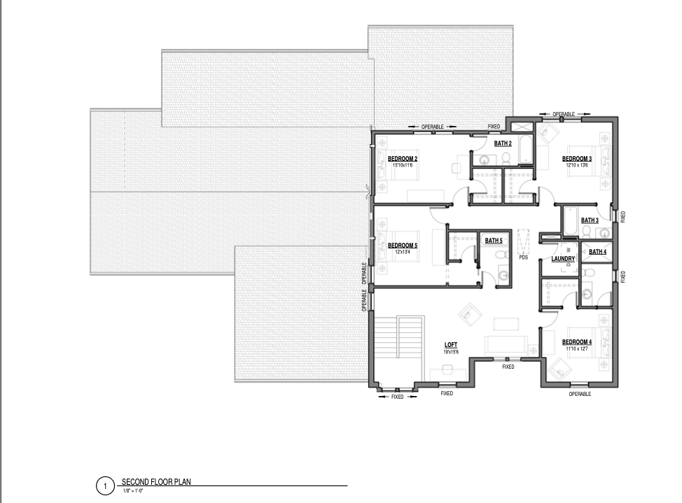
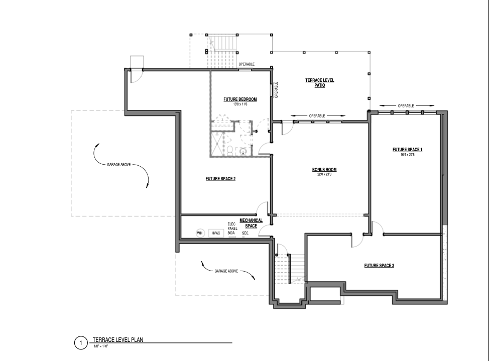
This 4,972 sq ft Brightwater home offers 5 bedrooms, 5.5 baths, and a 3-car garage in a sought-after Milton community. Designed for modern living, it features a chef’s kitchen with double islands and a 48″ range, a spacious family room, and seamless indoor-outdoor flow to a screened deck with fireplace. The main-level primary suite boasts dual closets with direct laundry access, while upstairs offers 4 ensuite bedrooms, a loft, and a second laundry room. A finished terrace-level bonus room adds flexible living space. With its Old Bailey brick exterior, Urbane Bronze board and batten, and Zero Energy Ready construction, this home blends timeless design with forward-thinking sustainability.
Disclaimer: The home is to be built. Pictures depicted are artist renderings and measurements, built-in features, furnishings, and finishes depicted are for illustrative purposes only and may not be reflected in the final product. See agent for more details.
Important Home Features
- Double Islands in the Kitchen
- Screened Deck with Fireplace
- Dedicated Work From Home Space
- Main Level Primary Suite
- Zero Energy Ready Home
Ready for more information?
We would love to show you more. Reach out to us by phone or email today and a Brightwater specialist will be happy answer any questions you may have.
About The Ridge at Sweet Apple
The Ridge at Sweet Apple
The Good Life, Naturally
WELCOME TO THE RIDGE AT SWEET APPLE
Introducing a collection of 19 extraordinary custom homes. The charm of nature’s splendor meets the sophistication of modern living at The Ridge at Sweet Apple. This community is designed to offer an unparalleled experience, combining luxury and tranquility with the conveniences of city life just a short distance away. We invite you to embrace the spirit of this remarkable place, creating a home that not only reflects your personal vision but also honors the unique beauty and natural heritage of the Appalachian foothills. Together, we can build a community where luxury living, and the majesty of nature exist in perfect balance.
The Ridge at Sweet Apple enjoys a natural setting that beckons the explorer in everyone. The incredible property features amenities set in 20-acres of green space and backs up to Lakhapani Preserve, a 106-acre nature preserve owned by the City of Milton. Delight in expanses of preserved trees, more than a hundred species of native plants and miles of private walking trails. Drop a fishing line in the lake from the fishing dock. Roast marshmallows over crackling fire pits. Or just grab a rocking chair and enjoy the view. Neighborhood amenities - including a community garden, two fire pits, a fishing dock and a bocce ball court complement the natural setting and invite everyone to join in and enjoy.
Community
The Ridge at Sweet Apple
915 Ebenezer Lane
Milton, GA 30075
Contact Us
The Ridge at Sweet Apple
915 Ebenezer Lane
Milton, GA 30075
Expand Directions
Open Hours
Monday - Sunday: By appointment only
Sales Agent
Matt Schwartzhoff











