1725 Vireo Court
Johns Island, South Carolina 29455
The Preserve at Pennys Creek - Homesite 46
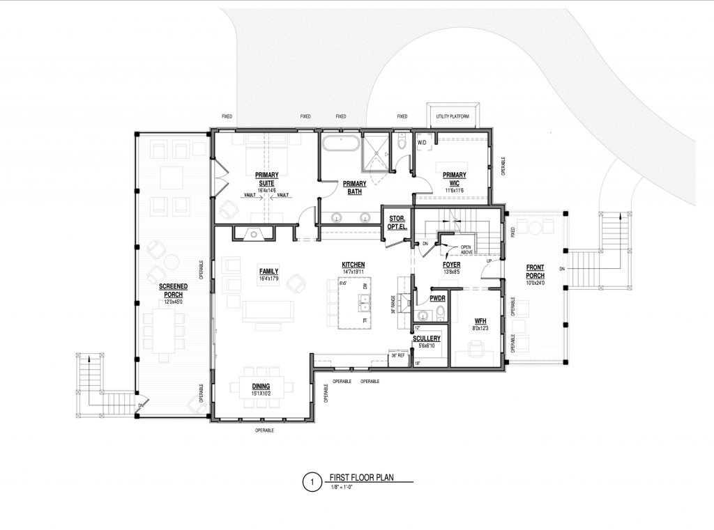
Welcome to 1725 Vireo Court, a breathtaking Zero Energy Ready Home by Brightwater, situated in a quiet cul-de-sac in The Preserve at Penny’s Creek on Johns Island, SC. Set on one of the community’s most spacious homesites, this .42-acre property offers both privacy and ample outdoor space to enjoy the Lowcountry lifestyle. With 3,089 square feet, 4 bedrooms, and 4.5 bathrooms, this home is designed for both luxury and functionality.
Thoughtfully crafted for entertaining, the gourmet kitchen features a spacious scullery, providing extensive prep space and storage to keep the main kitchen pristine. Just off the foyer, a dedicated home office offers a quiet, private workspace, while an optional elevator enhances convenience and accessibility throughout the home.
The bright and airy family room is the heart of the home, seamlessly flowing into a screened-in porch through a triple-slider wall of glass, creating a perfect indoor-outdoor living experience. A main-level guest suite ensures comfort and privacy for visitors, making it an ideal retreat for family and friends.
Upstairs, a large loft provides a flexible space that can serve as a playroom, media room, or private retreat. The vaulted primary suite is a true sanctuary, featuring a spa-like bath and the ultimate convenience of direct access from the primary closet to the laundry room.
Completing this remarkable home is a spacious 4-car tandem garage, offering ample storage and parking.
Located in the highly sought-after Preserve at Penny’s Creek, this stunning cul-de-sac home embodies the perfect balance of privacy, elegance, and modern comfort. Schedule your private tour today and experience the best of Johns Island living.
Important Home Features
- Vaulted Primary Suite
- Guest Suite on the Main Level
- 4 Car Tandem Garage
- Optional Elevator
- Net Zero Energy Ready
Ready for more information?
We would love to show you more. Reach out to us by phone or email today and a Brightwater specialist will be happy answer any questions you may have.
About The Preserve at Pennys Creek
The Preserve at Pennys Creek
Low Country Luxury Along the Banks of Pennys Creek
New homes by Brightwater at The Preserve at Pennys Creek combine undeniably Low Country charm inspired by the enchanting details of classic Charleston homes with luxuriously appointed, open interiors designed and personalized for the way you want to live. The result is a home that is timeless, uniquely yours and one-of-a-kind every time.
The Preserve at Pennys Creek is softly nestled along the banks of Pennys Creek in a stunning sea island setting. Here, thoughtful planning shapes a neighborhood that not only preserves but celebrates the natural beauty of the Low Country. Enjoy the dappled cool of the trees as you follow the neighborhood’s network of trails to meet friends at the waterside firepit or enjoy the views of the marsh and the Ravenel Bridge beyond. Cast your crab trap or watch dolphins off the community docks while you catch the sunset. All the glories of the Low Country wait for you here – and all just minutes from Downtown Charleston.
Though it feels a world apart, The Preserve at Pennys Creek’s sought after Johns Island address puts every convenience comfortably close. Enjoy easy access to local shopping, dining and a world of recreational activities with just a short drive to Downtown Charleston, Folly Beach or Charleston International Airport.
Preseve at Pennys Creek homes, built in 2025, are Zero Energy Ready Homes, thoughtfully designed with the infrastructure in place to easily add solar panels in the future.
Community
The Preserve at Pennys Creek
1548 John Fenwick Lane
Johns Island, SC 29455
Also Available in The Preserve at Pennys Creek
$1,459,000
Homesite 51
4 Beds · 4.5 Baths
1710 Vireo Court
Johns Island, SC 29455
$1,505,000
Homesite 50
4 Beds · 4.5 Baths
1714 Vireo Court
Johns Island, SC 29455
$1,585,000
Homesite 47
4 Beds · 4.5 Baths
1726 Vireo Court
Johns Island, SC 29455
$1,899,000
Homesite 18
4 Beds · 4.5 Baths
1604 John Fenwick Lane
Johns Island, South Carolina 29455
$1,920,000
Homesite 12
4 Beds · 4.5 Baths
1572 John Fenwick Lane
Johns Island, SC 29455
$1,925,000
Homesite 06
4 Beds · 4.5 Baths
1548 John Fenwick Lane
Johns Island, SC 29455
Contact Us
The Preserve at Pennys Creek
1548 John Fenwick Lane
Johns Island, SC 29455
Expand Directions
Open Hours
Monday & Tuesday: By Appointment Only
Wednesday - Friday: 11AM - 4PM
Saturday & Sunday: By Appointment Only
or Call for an Appointment.
Sales Agent
Beach Residential
Danner Benfield, Nina Freeman, Molly Colvin





