1714 Vireo Court
Johns Island, SC 29455
The Preserve at Pennys Creek - Homesite 50
Welcome to 1714 Vireo Court—a thoughtfully crafted Lowcountry home that blends timeless design with modern livability. This 4-bedroom, 4.5-bath residence spans 3,148 square feet and includes a flexible 3-car tandem garage, offering space, style, and connection at every turn.
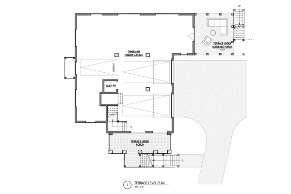
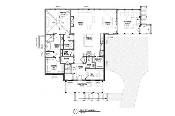
At the center of the home, a gourmet kitchen with Thermador appliances, designer finishes, and a spacious scullery sets the stage for effortless entertaining and everyday ease. The open dining room flows through a three-panel sliding door to a screened deck, where pond views and gentle breezes create a perfect backdrop for morning coffee or evening gatherings. A terrace-level porch below doubles your outdoor living space and provides a peaceful place to unwind.
The vaulted primary suite on the main level is a serene retreat with soaring ceilings, a freestanding soaking tub, walk-in shower, and a spacious walk-in closet designed for comfort and function. A dedicated home office provides a quiet space to work or create, while dual laundry areas—one on each level—add everyday convenience.
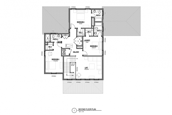
Upstairs, three secondary bedrooms, each with their own ensuite bath, offer privacy for family and guests. A large loft creates a flexible gathering space perfect for a media room, playroom, or cozy lounge.
Designed for the way you live today—and built for the future—this Zero Energy Ready Home delivers exceptional efficiency, comfort, and sustainability. With an optional 3-stop elevator and a versatile 3-car tandem garage ideal for vehicles, golf cart, or workshop, 1714 Vireo Court is a home that adapts beautifully to your lifestyle.
1714 Vireo CourtImportant Home Features
Limited Time: $30,000 to be used Your Way on Seller accepted contracts through 4/6/26.
- Screened Deck and Porch
- Vaulted Primary Suite on Main Level
- Optional Elevator
- Dual Laundry
- Zero Energy Ready Home
Ready for more information?
We would love to show you more. Reach out to us by phone or email today and a Brightwater specialist will be happy answer any questions you may have.
About The Preserve at Pennys Creek
The Preserve at Pennys Creek
Low Country Luxury Along the Banks of Pennys Creek
New homes by Brightwater at The Preserve at Pennys Creek combine undeniably Low Country charm inspired by the enchanting details of classic Charleston homes with luxuriously appointed, open interiors designed and personalized for the way you want to live. The result is a home that is timeless, uniquely yours and one-of-a-kind every time.
The Preserve at Pennys Creek is softly nestled along the banks of Pennys Creek in a stunning sea island setting. Here, thoughtful planning shapes a neighborhood that not only preserves but celebrates the natural beauty of the Low Country. Enjoy the dappled cool of the trees as you follow the neighborhood’s network of trails to meet friends at the waterside firepit or enjoy the views of the marsh and the Ravenel Bridge beyond. Cast your crab trap or watch dolphins off the community docks while you catch the sunset. All the glories of the Low Country wait for you here – and all just minutes from Downtown Charleston.
Though it feels a world apart, The Preserve at Pennys Creek’s sought after Johns Island address puts every convenience comfortably close. Enjoy easy access to local shopping, dining and a world of recreational activities with just a short drive to Downtown Charleston, Folly Beach or Charleston International Airport.
Preseve at Pennys Creek homes, built in 2025, are Zero Energy Ready Homes, thoughtfully designed with the infrastructure in place to easily add solar panels in the future.
Community
The Preserve at Pennys Creek
1548 John Fenwick Lane
Johns Island, SC 29455
Also Available in The Preserve at Pennys Creek
$1,459,000
Homesite 51
4 Beds · 4.5 Baths
1710 Vireo Court
Johns Island, SC 29455
$1,505,000
Homesite 50
4 Beds · 4.5 Baths
1714 Vireo Court
Johns Island, SC 29455
$1,585,000
Homesite 47
4 Beds · 4.5 Baths
1726 Vireo Court
Johns Island, SC 29455
$1,899,000
Homesite 18
4 Beds · 4.5 Baths
1604 John Fenwick Lane
Johns Island, South Carolina 29455
$1,920,000
Homesite 12
4 Beds · 4.5 Baths
1572 John Fenwick Lane
Johns Island, SC 29455
$1,925,000
Homesite 06
4 Beds · 4.5 Baths
1548 John Fenwick Lane
Johns Island, SC 29455
Contact Us
The Preserve at Pennys Creek
1548 John Fenwick Lane
Johns Island, SC 29455
Expand Directions
Open Hours
Monday & Tuesday: By Appointment Only
Wednesday - Friday: 11AM - 4PM
Saturday & Sunday: By Appointment Only
or Call for an Appointment.
Sales Agent
Beach Residential
Danner Benfield, Nina Freeman, Molly Colvin





























