1710 Vireo Court
Johns Island, SC 29455
The Preserve at Pennys Creek - Homesite 51
Welcome to 1710 Vireo Court, a thoughtfully designed Lowcountry home where comfort, connection, and craftsmanship come together in Brightwater’s serene Coastal Willow aesthetic. This 4-bedroom, 4.5-bath residence offers 3,037 square feet of beautifully curated living space with a 2-car garage, balancing relaxed coastal living with refined architectural detail.
At the heart of the home, the gourmet kitchen anchors the main living area with Thermador appliances, a spacious scullery, and natural stone countertops featuring subtle movement and warmth. Soft green accents, warm cabinetry, and elegant accent lighting enhance the light, airy feel, while the kitchen flows effortlessly into the dining area and family room—an inviting space for everyday living and entertaining alike. A three-panel sliding door extends the living area to a screened deck, creating a seamless indoor–outdoor connection ideal for morning coffee, evening gatherings, or year-round enjoyment.
Warm hardwood floors carry throughout the home, complemented by thoughtfully placed accent walls that add depth and character. The vaulted primary suite is a serene retreat filled with natural light, featuring a spa-inspired bath with a freestanding soaking tub, walk-in shower, and a generous closet designed for both beauty and function. A private main-level guest suite and a dedicated home office offer flexibility for hosting, working, or creating with ease.
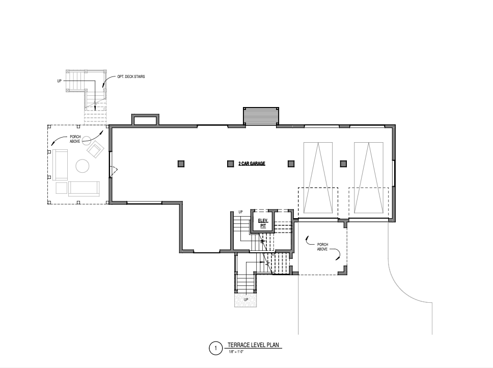
Upstairs, two secondary bedrooms each include private ensuites and walk-in closets, while a spacious loft provides adaptable living space for relaxation, play, or productivity. Built as a Zero Energy Ready Home, 1710 Vireo Court delivers exceptional efficiency, comfort, and sustainability for a healthier home and lighter footprint. An optional three-stop elevator adds convenience and accessibility from terrace level to top floor, ensuring the home evolves gracefully through every stage of life.
Important Home Features
Limited Time: Free 3 Stop Elevator on Seller Accepted Contracts Written on or before 2/15/2026!
- Vaulted Primary Suite
- Optional Elevator
- Guest Suite on the Main Level
- Dedicated Work From Home Space
- Zero Energy Ready Home
Ready for more information?
We would love to show you more. Reach out to us by phone or email today and a Brightwater specialist will be happy answer any questions you may have.
About The Preserve at Pennys Creek
The Preserve at Pennys Creek
Low Country Luxury Along the Banks of Pennys Creek
New homes by Brightwater at The Preserve at Pennys Creek combine undeniably Low Country charm inspired by the enchanting details of classic Charleston homes with luxuriously appointed, open interiors designed and personalized for the way you want to live. The result is a home that is timeless, uniquely yours and one-of-a-kind every time.
The Preserve at Pennys Creek is softly nestled along the banks of Pennys Creek in a stunning sea island setting. Here, thoughtful planning shapes a neighborhood that not only preserves but celebrates the natural beauty of the Low Country. Enjoy the dappled cool of the trees as you follow the neighborhood’s network of trails to meet friends at the waterside firepit or enjoy the views of the marsh and the Ravenel Bridge beyond. Cast your crab trap or watch dolphins off the community docks while you catch the sunset. All the glories of the Low Country wait for you here – and all just minutes from Downtown Charleston.
Though it feels a world apart, The Preserve at Pennys Creek’s sought after Johns Island address puts every convenience comfortably close. Enjoy easy access to local shopping, dining and a world of recreational activities with just a short drive to Downtown Charleston, Folly Beach or Charleston International Airport.
Preseve at Pennys Creek homes, built in 2025, are Zero Energy Ready Homes, thoughtfully designed with the infrastructure in place to easily add solar panels in the future.
Community
The Preserve at Pennys Creek
1548 John Fenwick Lane
Johns Island, SC 29455
Also Available in The Preserve at Pennys Creek
$1,459,000
Homesite 51
4 Beds · 4.5 Baths
1710 Vireo Court
Johns Island, SC 29455
$1,475,000
Homesite 50
4 Beds · 4.5 Baths
1714 Vireo Court
Johns Island, SC 29455
$1,585,000
Homesite 47
4 Beds · 4.5 Baths
1726 Vireo Court
Johns Island, SC 29455
$1,899,000
Homesite 18
4 Beds · 4.5 Baths
1604 John Fenwick Lane
Johns Island, South Carolina 29455
$1,920,000
Homesite 12
4 Beds · 4.5 Baths
1572 John Fenwick Lane
Johns Island, SC 29455
Contact Us
The Preserve at Pennys Creek
1548 John Fenwick Lane
Johns Island, SC 29455
Expand Directions
Open Hours
Monday & Tuesday: By Appointment Only
Wednesday - Friday: 11AM - 4PM
Saturday & Sunday: By Appointment Only
or Call for an Appointment.
Sales Agent
Beach Residential
Danner Benfield, Nina Freeman, Molly Colvin






























