1722 Vireo Court
Johns Island, SC 29455
The Preserve at Pennys Creek - Homesite 48
Welcome to 1722 Vireo Court, a beautifully crafted Brightwater residence located in The Preserve at Pennys Creek on Johns Island. Set on a premier homesite in a coveted wooded cul-de-sac, this 4-bedroom, 4.5-bathroom home spans 3,204 square feet and combines classic Lowcountry charm with sophisticated modern living.
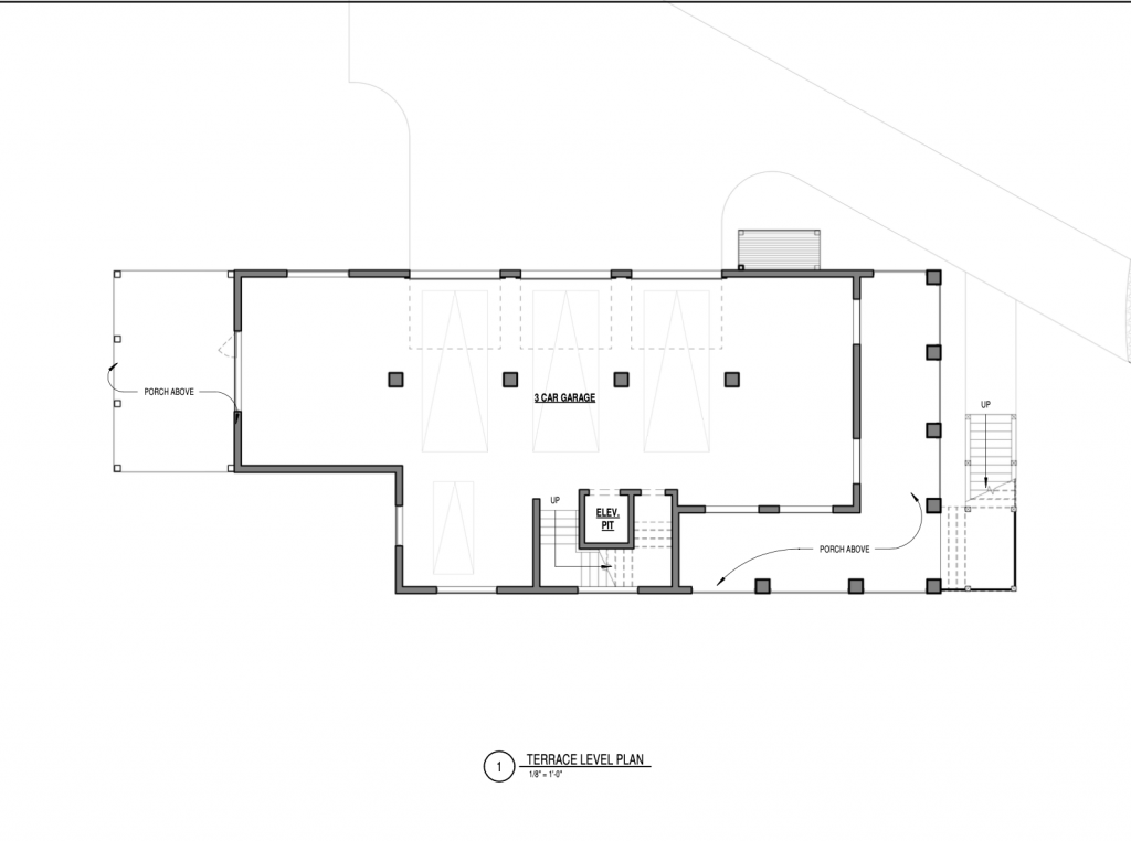
From the moment you arrive, the inviting wraparound front porch sets a timeless tone, offering the perfect spot for morning coffee, evening conversations, or quiet moments surrounded by nature. The three-car side-entry garage enhances curb appeal while providing ample space for vehicles, storage, or a home workshop.
Designed with future-forward living in mind, this home is a certified Zero Energy Ready Home—offering enhanced indoor air quality, long-term energy savings, and superior comfort throughout the seasons. Inside, a gracious foyer welcomes you into a thoughtfully designed main level featuring a private guest suite with a walk-in shower and closet, ideal for multigenerational living or long-term stays.
A dedicated home office bathed in natural light provides a serene setting for remote work or creative pursuits. The heart of the home is a stunning gourmet kitchen equipped with Thermador appliances, generous cabinetry, a spacious island, and an oversized scullery for additional prep and storage. Seamless indoor-outdoor living is made possible by an open-concept layout that connects the kitchen, dining, and family room to a covered screened porch—perfect for entertaining or relaxing year-round.
Guests will appreciate the elegant main-level powder room, while upstairs, the vaulted primary suite offers a private sanctuary with spa-like features including dual vanities, a soaking tub, walk-in shower, and a generous walk-in closet. A spacious loft provides versatile living space for a second lounge, media room, or play area, complemented by two additional ensuite bedrooms that offer comfort and privacy for family or guests.
1722 Vireo Court is a rare opportunity to own a beautifully appointed home in one of Johns Island’s most desirable settings—where thoughtful design meets the peace of nature and the promise of lasting quality.
Important Home Features
- Wooded Cul-de-Sac Homesite
- Vaulted Primary Suite
- Main Level Guest Suite
- Optional Elevator
- Zero Energy Ready Home
Zero Energy Ready Homes
Ready for more information?
We would love to show you more. Reach out to us by phone or email today and a Brightwater specialist will be happy answer any questions you may have.
About The Preserve at Pennys Creek
The Preserve at Pennys Creek
Low Country Luxury Along the Banks of Pennys Creek
New homes by Brightwater at The Preserve at Pennys Creek combine undeniably Low Country charm inspired by the enchanting details of classic Charleston homes with luxuriously appointed, open interiors designed and personalized for the way you want to live. The result is a home that is timeless, uniquely yours and one-of-a-kind every time.
The Preserve at Pennys Creek is softly nestled along the banks of Pennys Creek in a stunning sea island setting. Here, thoughtful planning shapes a neighborhood that not only preserves but celebrates the natural beauty of the Low Country. Enjoy the dappled cool of the trees as you follow the neighborhood’s network of trails to meet friends at the waterside firepit or enjoy the views of the marsh and the Ravenel Bridge beyond. Cast your crab trap or watch dolphins off the community docks while you catch the sunset. All the glories of the Low Country wait for you here – and all just minutes from Downtown Charleston.
Though it feels a world apart, The Preserve at Pennys Creek’s sought after Johns Island address puts every convenience comfortably close. Enjoy easy access to local shopping, dining and a world of recreational activities with just a short drive to Downtown Charleston, Folly Beach or Charleston International Airport.
Preseve at Pennys Creek homes, built in 2025, are Zero Energy Ready Homes, thoughtfully designed with the infrastructure in place to easily add solar panels in the future.
Community
The Preserve at Pennys Creek
1548 John Fenwick Lane
Johns Island, SC 29455
Also Available in The Preserve at Pennys Creek
$1,459,000
Homesite 51
4 Beds · 4.5 Baths
1710 Vireo Court
Johns Island, SC 29455
$1,475,000
Homesite 50
4 Beds · 4.5 Baths
1714 Vireo Court
Johns Island, SC 29455
$1,585,000
Homesite 47
4 Beds · 4.5 Baths
1726 Vireo Court
Johns Island, SC 29455
$1,899,000
Homesite 18
4 Beds · 4.5 Baths
1604 John Fenwick Lane
Johns Island, South Carolina 29455
$1,920,000
Homesite 12
4 Beds · 4.5 Baths
1572 John Fenwick Lane
Johns Island, SC 29455
Contact Us
The Preserve at Pennys Creek
1548 John Fenwick Lane
Johns Island, SC 29455
Expand Directions
Open Hours
Monday & Tuesday: By Appointment Only
Wednesday - Friday: 11AM - 4PM
Saturday & Sunday: By Appointment Only
or Call for an Appointment.
Sales Agent
Beach Residential
Danner Benfield, Nina Freeman, Molly Colvin





